Bjørnemyrveien 22
Tomtescore
Utmerket
Tomtescore
Tomten scorer 80 av 100. Skrånende tomt gir noe høyere grunnarbeidskostnader, men Skogly er spesialdesignet for skråtomter. Godkjent fradeling og komplett dokumentasjon.
Nærhet til sentrum, skole, kollektiv
Utnyttelsesgrad, fleksibilitet, hensynssoner
Helning, grunnforhold, naturfare
Vei, vann, avløp, strøm, fiber
Pristrend, etterspørsel, omsetningshastighet
ROI, byggekostnad, risiko
Bilder
7 bilder fra Bjørnemyrveien 22

Husmodellen Skogly fra Hedalm-Anebyhus. Perfekt for skrånende tomt med inngang fra to plan.
Velg husmodell
4 husmodeller med komplett kostnadsoverslag for Tomt C (skrå tomt).


Husmodell: Skogly
Hedalm-Anebyhus
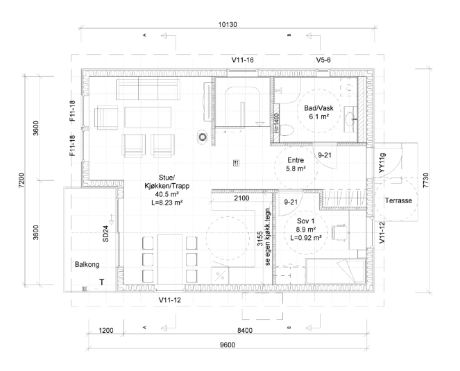
Moderne, kompakt bolig perfekt tilpasset skrånende tomter. Stor og åpen stue/kjøkkenløsning med balkong. To plan med inngang fra begge etasjer – ideell for Tomt C.
126.1 m²
Innvendig BRA
4
Soverom
2
Bad
2
Etasjer
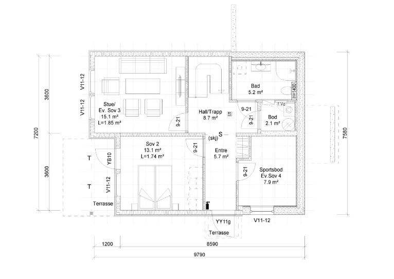
Plantegninger – Skogly

Hovedetasje – stue, kjøkken, bad og soverom 1

Underetasje – 3 soverom, bad og sportsbod
Inkludert i Skogly
Kostnadsoverslag – Skogly
Realistisk estimat basert på innhentede tilbud og kjente kostnader per februar 2025.
Hva er boligen verdt etterpå?
Boligareal
136 m²
m²-pris nybygg
70 000 kr
Estimert verdi
9 520 000 kr
Byggekostnad
7.9M
Markedsverdi
9.5M
Potensiell verdiskaping
+ ca. 1.6 MNOK
Tegning og byggesøknad
Vår samarbeidspartner Tegnebua gir fastpris på å tegne og søke om husmodellen du har valgt – tilpasset din tomt.
Tegnebua
Offisiell Tomtly-partner
Tegning
- Situasjonsplan tilpasset tomten
- Plantegninger (alle etasjer)
- Fasadetegninger (alle sider)
- Snitt-tegning
- Tilpasning av valgt husmodell til regulering
- Utomhusplan med terrengbearbeiding
Byggesøknad frem til rammetillatelse
- Ansvarlig søker (SØK)
- Komplett byggesøknad til kommunen
- Nabovarsling og oppfølging av merknader
- Evt. dispensasjonssøknad
- Gjennomføringsplan
- Oppfølging til godkjenning
Tegning og søknad frem til rammetillatelse
50 000 kr + mva
fastpris
Estimert leveringstid: 4 uker fra bestilling
Prisene gjelder for valgt husmodell. Endelig pris bekreftes etter gjennomgang av tomten.
Tidsplan
Fra tomtekjøp til innflytting. VA-søknad, overvannsrapport og avkjøringstillatelser er allerede utarbeidet.
Mars 2026
Kjøp av tomt
Avtale signeres. Overtakelse estimert 1. mai 2026.
Uke 1 etter kjøp
Tegninger og nabovarsling klar
Tegningsgrunnlag ferdigstilles og nabovarsler sendes ut.
Uke 1–3
Nabovarslingsperiode
14 dagers nabovarsling. Søknadsdokumenter forberedes.
Ca. 1. april 2026
Byggesøknad sendes
Komplett søknad sendes kommunen.
Mai 2026
Byggetillatelse innvilget
Estimert 3 ukers saksbehandling.
Juni 2026
Byggestart
Grunnarbeider starter. Hus leveres og monteres.
Nov/des 2026
Ferdigstillelse og innflytting
Fra kjøp til nøkkel på under ett år.
Reguleringsanalyse
Reguleringsplan for Bjørnemyr (vedtatt 2018-03-20)
Arealformål
Boligbebyggelse – frittliggende småhusbebyggelse
20%
Maks BYA
9 m
Maks høyde
2
Maks etasjer
4 m
Byggegrense
Reguleringsbestemmelser
- 1Maks BYA 20% (122,6 m²)
- 2Maks gesimshøyde 7m, mønehøyde 9m
- 3Godkjent delesøknad og matrikkelbrev
- 4VA-søknad, overvannsrapport og avkjøringstillatelse utarbeidet
Nabolaget
Etablert boligområde på Bjørnemyr, omgitt av skog og natur. Kort vei til sjøen. Barnevennlig. Ca. 30 min til Oslo med buss/båt.
Innen 5 minutters gange
Buss til Tangen/Oslo
Kollektivtransport
5 min
380 m
Bjørnemyr barnehage
Barnehage
4 min
330 m
Skog og turområder
Park/friområde
1 min
80 m
5–10 minutters gange
Bjørnemyr skole
Skole
7 min
580 m
Dagligvare Bjørnemyr
Dagligvare
6 min
480 m
Dokumenter
Komplett dokumentasjon for tomten.
Risikoanalyse
Risikofaktorer
| Kategori | Beskrivelse | S | K | Risiko | Tiltak |
|---|---|---|---|---|---|
| Regulering | Godkjent fradeling, innenfor plan | 1 | 2 | 2 | Delesøknad godkjent |
| Grunnforhold | Skrånende tomt, noe mer grunnarbeid | 2 | 2 | 4 | Tilbud innhentet, Skogly designet for skråtomt |
| Marked | Prisfall i segmentet | 2 | 2 | 4 | Konservativt estimat |
| Kostnad | Overskridelse byggebud | 1 | 2 | 2 | Fastpriser fra leverandører |
S = Sannsynlighet (1-5), K = Konsekvens (1-5), Risiko = S × K
Anbefalinger
- 1Lav risiko – godkjent fradeling, fastpriser og kjente kostnader
- 2Skogly og Vindy har skråtomt-varianter tilpasset denne tomten
Bjørnemyrveien 22
Interessert?
Ta kontakt for mer informasjon om denne tomten og mulighetene.
Prismodell